Custom Building Design Services


Transforming your ideas into precise construction drawings.
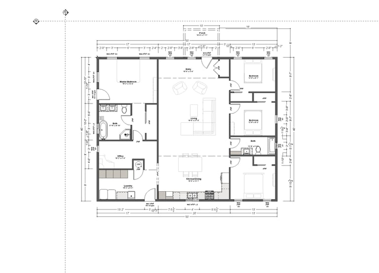
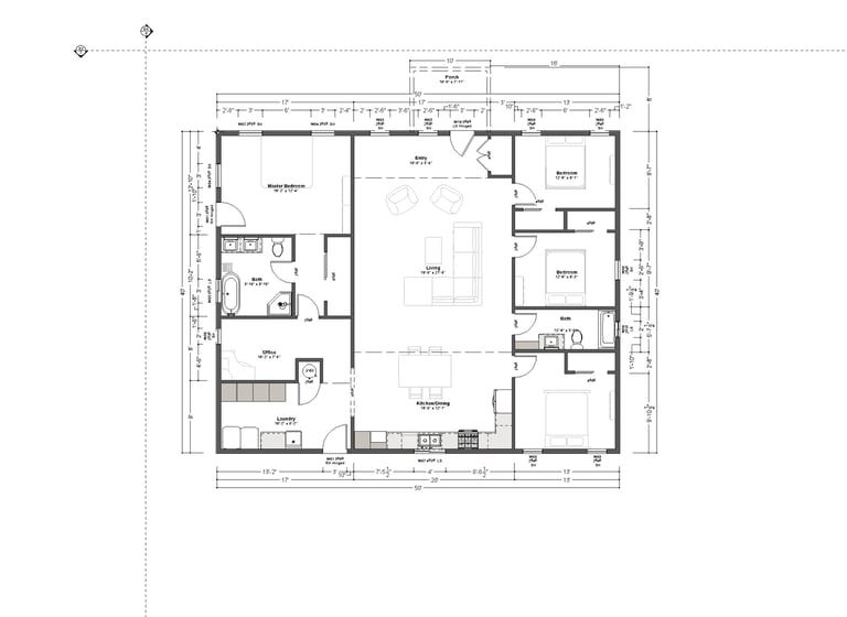
Custom Construction Documents
Detailed plans ready to send to your engineer, or in most rural counties, straight to your building department. I also know engineers who can take care of any engineering needs.


3D Modeling
Sketches or photo like renders. Images generated from the same software that is used to lay out the floor plan. This ensures that images are accurate, and helps us notice potential choke points, awkward layouts, and other design errors.


Basic Interior Design
We can help you create beautiful, timeless interiors that reflect your vision. Think of your favorite memories and places. Think about the objects, colors, and moods that you always associate with those places. Together we can compile them to create a beautiful, coherent space.
Let's build something:
Simple,
Beautiful,
Functional


Agricultural
Hay Barns, Machine Sheds, Animal Shelters and more


Residential
From efficient Tiny Homes to full custom residences, I bring hands-on experience to make it beautiful, functional, and build-able.
Affordable plan sets
I may be able to build you custom plans for the same amount you would pay for stock plans.


Basic Web Design
I can build and manage a custom website like this one, for your construction business.

About Your Designer
Work History
My background is in hands-on construction and small business. I've been building things all my life. That includes designing and building portable cabins, wood framed park model RVs, and site build residences, including my own cozy 1 and 1/2 story house, which has a 480 SQ FT footprint, and houses our family of four. I'm now branching out into full time design services now, so that I can work from home to support the changing needs of my family. In 2024, I began a course with the Interior Design Institute, to better equip me to provide valuable design and consulting services. I had to pause that due to immediate financial necessities, but hope to continue my studies soon.








Although I'm ready to take on projects of any size, my accidental specialty has been smaller spaces. I enjoy the challenge of working with limited space and budget. I know personally what it's like to work under those constraints. I strive to craft beautiful spaces that offer more storage and work space than expected, while providing a surprising amount of elbow room and that sense of having plenty of "breathing space". If you live in Colorado or Utah, check out this small family owned Tiny Home company near Fruita. I helped design and build this pilot model (pictured below).








Focus
Although I try to keep tabs on changing styles, my primary goal is not to build something that mirrors the latest styles. If that's what you're looking for, I might not be your person. I'm more interested in building something that will last through changing styles. Something that will provide a welcoming environment that radiates the style and mood you want to feel when you come home. Unless otherwise instructed, I pursue a simple elegance, optimizing spaces for a roomy feel and well appointed storage and work areas.
Specialties
Affordable Small Building Plans
Looking for Tiny Home Plans well under $1000? Check typical pricing.
Collaborative design, fast iteration
I can take your ideas, sketches or stock plans and work with you to make them your own. You get custom plans that actually reflect what you had in mind.
DIY Friendly
Get the design you're looking for with the information your building department and subcontractors need. Simple, readable construction details.
Guest Quarters
Looking to add a guest room for your guest, short term rentals, or both? I can help you explore feasible options and get you plans, so you can start getting quotes.
Home Offices
Thinking of converting a room to an office? Wondering if it would be better to build a detached unit? Looking for 3D illustrations of how different concepts would visually fit your existing residence? I can help.
Rural Projects
Don't need reams of unreadable diagrams and calculations for your more relaxed building department? I get turn your plan into simple drawings with just the information your inspectors and contractors like to see.
Something bigger in mind? No Problem!
I can bring the same skills and personal service to more extensive projects. You get personal designs and documents for projects of any scale.
Dreaming Out Loud
Have something ambitious in mind but don't know where to start? I can help with that too. Bring photos of places that inspire you, poetry that strikes you, words and phrases that describe that something you want your space to radiate. Let's make it real.
Previous Projects




































New Design Considerations
Space and Budget Limitations
How much space do I have to work with? How much can/should I spend? How soon does it have to be move-in ready?
What are the most important rooms?
Where will I be spending the most time? Which rooms should be melded together for easy access and comfortable conversations?
Rebuild, Remodel, or Redecorate?
If you're building a new place, you have a clean slate. If you're redoing an existing space, you can save a lot of time and money by just repainting and refurnishing. If something just seems "off" with a room, you may only need to change a detail or two. You can snap a few pictures to share with potential design service providers. They may have suggestions that will help you clarify how involved your project will be, before you commit to spending any money. KMast Design can provide a complete design with layouts, elevations, and color palates. Or I can simply take a look and make suggestions. If your main concern is getting the colors right, I recommend taking a look at mariakillam.com. No affiliation, but she offers extensive free and paid material for anyone who doesn't have time to get a degree in color theory.
Thinking about designing a new room or house? Considering these questions can help you know where to start.
Other priorities
What factors are most important? Space and utility per dollar? Utility per square foot? Beauty and elegant form? Getting done ASAP?
Typical Project Pricing
Floor plan only
50¢ SQ FT
Garages and unfinished spaces 25¢ SQ FT. Includes 3D illustration of exterior and each room. Pick this one if an engineer will be providing construction details.
Price may vary under some conditions. Contact me for a free evaluation and quote.
Construction Drawings
$1 SQ FT
Garages and porches 50¢ SQ FT. Includes Plot Plan and construction details.
Pole Barns
10¢ SQ FT
Includes Plot Plan and construction details.
Remodels and additions
50¢ per existing SQ FT plus $1 per new or modified SQ FT
Tiny Homes and ADUs under 600 SQ FT
$600
Includes Plot Plan and construction details. Floor plan and 3D illustration only: $300
Interior Design
Per Project or Per Hour
Construction documents and interior design
info@kmastdesign.com
© 2025. All rights reserved.
520-564-9692
